梭式窑炉的节能、温差小和烧成周期短是优于传统窑炉的重要指标,也是梭式窑有别于加热炉、热处理炉的重要方面。目前,国内常用的梭式窑烧成室容积,小的只有几个立方米,大到成百上千立方米的,没有一个固定的系列,完全根据用户需要确定。本章主要介绍的是大容积的梭式窑的结构特性和设计、施工要求。

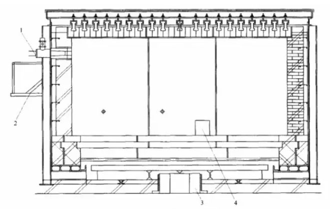
大型梭式窑炉大致由几部分组成,包括窑炉钢结构、窑体耐火材料、窑门启闭系统、窑车、进出车系统、窑炉基础(含内外轨道基础)和烟道、燃烧系统、排烟系统、控制系统等。
梭式窑的窑体的耐火材料结构通常由以下几部分构成:车台面以上和以下窑墙砌体、窑门、窑顶砌体以及窑车台面砌体。通常车台面以下窑墙由重质耐火砖砌筑,其余三部分均由抗热震性好、导热和膨胀系数小的轻质耐火材料砌筑。根据使用温度的不同,采用不同的高强度轻质砖加隔热纤维材料或采用多晶莫来石等复合耐火纤维模块构成窑的烧成空间。

窑墙、窑顶耐火材料是通过特殊的结构形式固定在窑体钢结构上的。因此,窑体钢结构必须有足够的强度和刚度作为支撑。通常,钢结构根据窑炉高度不同,由不同规格的型钢(多用工字钢或方钢管)作为立柱,不同厚度的钢扳(δ=4~6mm)作为墙板,根据窑炉宽度选定不同规格的型钢作为横梁。同时梭式窑大都设有操作平台。
梭式窑作为一种先进的工业窑炉设备,在我国机械行业的电工陶瓷、砂轮厂;建材行业的卫生陶瓷厂;环保和耐火材料等行业的工厂已经得到广泛应用。它以能耗低、温度均匀、烧成周期短、自动化程度高、生产灵活等特点,使上述行业的烧成工艺发生了变革性的进步,产生了很大的技术经济效益,正在逐步取代和淘汰传统的倒焰窑甚至隧道窑。随着我国科技水平的不断进步,相关产业的不断发展,更加节能、自动化程度更高的梭式窑将会得到越来越广泛地应用。
梭式窑炉结构形式近似于台车式加热炉、热处理炉、在陶瓷和耐火材料行业称之为梭式窑,顾名思义,窑车的运动轨迹就像一个“梭子”一样从窑内拉出、推进。也有称作抽屉窑,也足取窑车推进拉出之意。由于梭式窑是间歇式烧成设备,每个烧成周期都经过加热和冷却过程,因此,窑体和窑车的蓄热、散热量大小直接影响窑炉的热效率。梭式窑多采用轻质耐火材料,以较大限度地减少蓄热和散热损失;同时配置调温高速烧嘴,以避免火焰温度与待烧制品之间温差过大,而造成的制品缺陷.并通过高速气流在窑内的扰动和卷吸作用,增加对流换热效率;基本采用平顶结构,使窑顶与窑墙相互独立,既能自由伸缩,为窑体轻型化提供了条件,同时又充分利用了窑内空间;棱式窑采用下排烟的形式,为均匀窑内温度和简化车间地面设施提供了有利条件。

以电瓷行业梭式窑为例,其窑墙耐火材料一般是由轻质莫来石砖(300~348mm )+硅酸铝耐火纤维(80~100mm)或轻质莫来石砖(230mm)+轻质高铝砖(114mm)+硅酸铝耐火纤维(80~100mm)这样两种轻质砖加隔热层结构组成;极少数的电瓷梭式窑也采用了全纤维耐火材料的窑墙、窑顶结构。目前耐火纤维的产品在经过反复加热冷却以及受高速气流冲刷后,存在着收缩大、易老化和极易发生纤维粉化剥落现象。而对于电瓷、陶瓷产品烧成的棱式窑,出现了这种情况就会造成产品外观和性能上的缺陷,这完全不同于金属加热或热处理炉的加热对象。一旦出现纤维粉化剥落的情况,就很难根除,因此,在对产品外观要求比较严格的陶瓷、电瓷梭式窑窑体耐火材料的选择时,都十分谨慎。轻质砖加耐火纤维的窑墙是以“浮锚”结构的形式,将耐火砖与窑墙钢板间进行连接,作为窑墙的稳固措施。
棱式窑的窑墙、窑顶和窑门,用轻质莫来石砖砌筑时,常采用气硬性耐火泥浆来砌筑。这种泥浆要求有良好的砌筑性能,既能保证合适的施工时问(一般要求在90~120s),又要求在施工一段时间之后能开始硬化,产生良好的常温(或低温)粘接强度(要求可以达到0.5MPa以上);同时有能满足在1000~1600℃温度范围内使用的多种规格。
用于梭式窑的轻质耐火砖,要求有良好的热稳定性,安全使用温度下的重烧线变化率小,热导率达到性能指标要求。可用于电瓷、陶瓷、耐火材料等行业常用轻质隔热耐火砖的性能指标。
在两侧窑墙上每条火道 的位置,上下交错布置了若干支调温高速烧嘴,高速喷出的焰气作为梭式窑的热量供应源和扰动卷吸作用的动力源。梭式窑的烧嘴布置形式与泛指的工业炉烧嘴大都布置在炉墙下部是有明显区别的,梭式窑窑内更强调气流在垂直断面上的上下循环和水平面上的循环的共存,这对均匀窑内温度是十分必要的。
常用的大型梭式窑窑门由钢结构和轻质耐火材料组成,耐火材料一般由轻质莫来石砖(230~270mm)+硅酸铝耐火纤维(30~80mm)构成,重量大都在3—6t。其开闭机构形式有回转式、平移式和升降式3种。窑门本体由吊梁悬吊,按不同开闭形式移动。目前大部分梭式窑窑门开闭均采用电动机构驱动,极少的厂家还采用人工操作、无论哪种关闭形式,关键点在于窑门与窑体的密封。
梭式窑炉的窑车及台面砌体组成梭式窑的窑底,与窑墙、窑顶和窑门组成烧成空间。窑车由钢架、车轮和砌在上面的耐火材料组成(见图20-4)。车台面耐火材料的结构形式和材质选择时,既要考虑其承载能力和加强隔热效果,又要尽量减少窑车砌体的蓄热散热损失。轻质窑车的推广应用为降低产品热耗提供了有效途径。
除个别从国外引进梭式窑采用上排烟(主要是由于建窑地点地下水位太高的原因)外,国内绝大部分大型梭式窑均采用下排烟。
根据气体垂直分流法则,在窑内的高温气流从上向下流动是保证窑内水平方向温度均匀的重要条件。梭式窑在垂直断面的上下均布置高速烧嘴,加上下排烟,这就是棱式窑温度均匀,可以实现快速烧成的重要的结构特点。这在机械行业的热处理炉等炉子上得到了验证。
由于烟道布置在窑基础底板下部,建窑地点地下水位较高的梭式窑烟道,多做成防水烟道。也有的窑为了避免地下水对烟道的影响,做成分散多条的浅烟道。在烟道内放置换热器的烟道,其较深处的侧边,还设有渗井作为烟道防水的辅助设施。
窑炉基础由C-15以上标号的混凝土捣制,根据土质和地耐力情况的差异,多做成钢筋混凝土结构。窑车轨道安装在窑炉混凝土基础之上。鉴于梭式窑的荷载状况,通常选用22kg/m以上规格轻轨。